Calabazas
Ubicada en una de las zonas de expansión de Santander, en el entorno del Alisal, con excelentes conexiones y proximidad a todos los servicios.
TIPOLOGIA
3 HABITACIONES
PLANTA BAJA EN ESQUINA.
Superficie Útil: 79.85m²
Sup. Const. p/p z. comunes: 109.70 m²
Sup. Parcela: 170.30 m²
Orientación sur, oeste y norte
TIPOLOGÍA
3 HABITACIONES
PLANTA BAJA CENTRAL.
Sup. Const. p/p z. comunes: 105.80 m²
Sup. Parcela: 114.35 m²
Orientación este y oeste
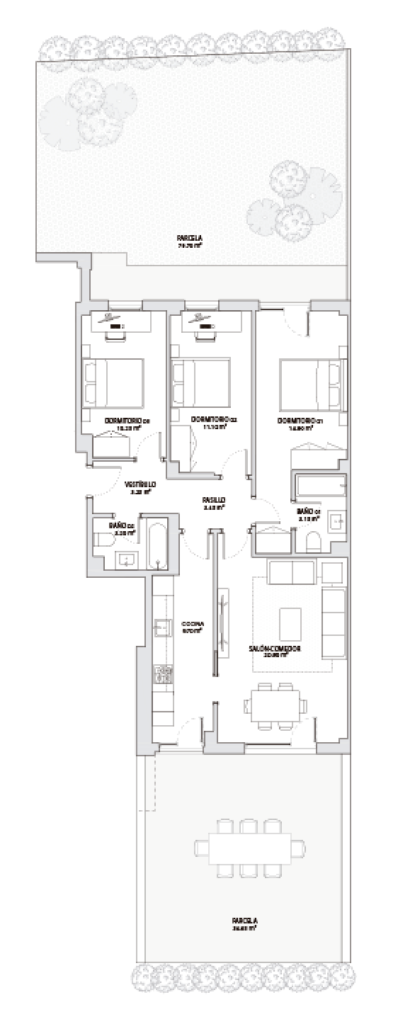
TIPOLOGÍA
3 HABITACIONES
PRIMERA PLANTA ESQUINA.
Superficie Útil: 79.95 m²
Sup. Const. p/p z. comunes: 107.70 m²
Orientación sur, oeste y norte
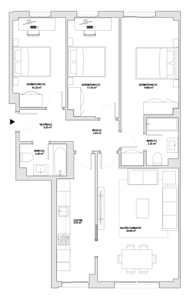
TIPOLOGÍA
3 HABITACIONES
PRIMERA PLANTA CENTRAL.
Superficie Útil: 79.90 m²
Sup. Const. p/p z. comunes: 104.40 m²
Orientación sur y norte
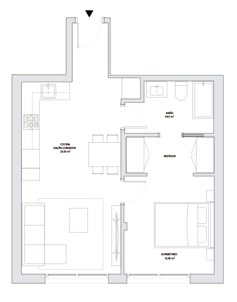
TIPOLOGÍA
1 HABITACIÓN
PRIMERA PLANTA.
Orientación sur


























Residencial Las Calabazas es un proyecto concebido con un enfoque contemporáneo que combina diseño, eficiencia energética y calidad constructiva para ofrecer viviendas confortables, sostenibles y adaptadas a las necesidades actuales.
Cada detalle ha sido cuidadosamente estudiado para garantizar un alto nivel de bienestar, optimizando el consumo energético y creando espacios pensados para disfrutar del hogar en su máxima expresión.
Eficiencia y confort inteligente
Viviendas diseñadas para ahorrar energía y mejorar tu bienestar
Residencial Las Calabazas ha sido concebido bajo criterios Passive House, incorporando soluciones como fachada ventilada, ventilación de doble flujo con recuperación de calor, aerotermia y carpinterías de alta eficiencia. Todo ello permite alcanzar la calificación energética A, reduciendo el consumo hasta tres veces respecto a una vivienda convencional y garantizando un ambiente interior saludable, silencioso y confortable durante todo el año.
Calidades constructivas de alto nivel
Materiales y sistemas pensados para durar y disfrutar
El proyecto integra una construcción sólida con estructura de hormigón armado, avanzados sistemas de aislamiento térmico y acústico, y tabiquería de yeso laminado que mejora el confort interior. Los acabados destacan por su calidad y diseño, con pavimentos resistentes, revestimientos de gran formato y carpinterías eficientes, ofreciendo además opciones de personalización para adaptar cada vivienda al estilo de sus propietarios.
Espacios comunes para vivir mejor
Zonas diseñadas para el ocio,
la comodidad y la convivencia
La urbanización cuenta con amplias zonas comunes que incluyen piscina, áreas ajardinadas, espacios infantiles y equipamientos deportivos como pista de pádel y mesa de ping-pong. Todo ello se complementa con accesos diferenciados, iluminación eficiente y sistemas de seguridad, creando un entorno funcional, seguro y pensado para disfrutar tanto dentro como fuera de la vivienda.
Ven a Piasca Home Design para elegir entre las diferentes posibilidades de personalización de tu vivienda.
Al adquirir una vivienda Real de Piasca, te hemos asignado un asesor personal que te acompañará hasta que recibas tu vivienda. A través de esta persona, solicita una cita en Home Design.
Una vez en el showroom, te atenderá un equipo de profesionales de la decoración que conocen al detalle la vivienda que has comprado y todas sus posibilidades. A partir de su amplia experiencia, te ayudarán a sacar el mejor partido de los espacios de tu nueva casa, a crear ambientes que encajan contigo, a resolver todas tus dudas y encontrar las mejores soluciones.
BAÑOS
El cuarto de baño, un lugar para reencontrarte contigo y ya no se elige sólo con criterios prácticos.
COCINAS
La cocina perfecta es práctica y bonita, y hemos reunido todas las opciones para que consigas ambas cosas.
SALONES
El salón es el lugar de encuentro de la casa, epicentro de la vida y la estancia donde recibimos a nuestros invitados.
DORMITORIOS
El dormitorio es donde empieza y termina cada día. Refugio personal, donde se empiezan las jornadas con buen pie.
Movimiento de tierras

Cimentación

Estructuras

Fachadas

Albañilería interior

Instalaciones

Acabados interiores

Urbanicación exterior

Siendo consicentes de la importancia y dificultad que conlleva la elección de una vivienda nos ponemos a su disposición para resolver cualquier consulta que pueda tener.
Puede contactar con nosotros a través del siguiente formulario, asegurándose nuestra respuesta en el menor tiempo posible una vez recibida su consulta.
En cumplimiento del artículo 5 de la ley 15/1999, por el que se regula el derecho de información en la recogida de los datos, se advierte de los siguientes extremos: Los datos de carácter personal, que pudieran constar en esta notificación, se incluirán en el fichero de nombre «Gestión de Consultas de Atención al Ciudadano», creado por Resolución del Director de la Agencia Española de Protección de Datos (AEPD) de fecha 24 de marzo de 2009 (B.O.E. nº 84) por la que se crean y modifican los ficheros de datos de carácter personal existentes en la AEPD.
La finalidad del fichero es gestionar las consultas que se planteen ante la misma. Sus datos personales no serán cedidos a terceros, salvo que los solicite el Defensor del Pueblo o los jueces o tribunales competentes. Vd. tendrá derecho a acceder a sus datos personales, rectificarlos o, en su caso, cancelarlos ante la AEPD, Organismo responsable del fichero. También tendrá derecho a oponerse a los tratamientos de datos que no le parezcan adecuados, siempre que no sean obligados o estén permitidos por una Ley.